Kristinelund

Nybyggnation av fritidshus
Nordvästra Öland
Privat
Färdigställt 2025
Anders Johnsson

Projekt
Plats
Beställare
Status
Foto

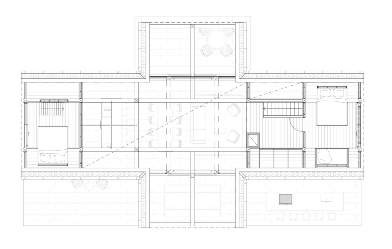
Det lilla huset på Öland är ett unikt projekt där traditionella byggnadshantverk och material möter samtida material och behov. Byggnaden är ett korsvirkeshus med stolpverk i massiv kärnfuru med en traditionell vägguppbyggnad. Stommen utgör väggens hela tjocklek och är således exponerad både interiört- såväl som exteriört. Fälten mellan stolpar, balkar och syll är murade med ett isolerande lager hampakalk som exteriört putsats med öländskt kalkbruk. Interiört utgörs ytterväggar av bålar i massiv kärnfuru eller stora glaspartier som låter rummen bada i ljus. Stolpverket är synligt i hela byggnaden och skapar ett inre ornament som också redovisar hela husets konstruktiva logik. Den obehandlade kärnfurun går igen i interiörens alla delar, där detaljer och hantverk varit en bärande del av projektet. Golv och terrasser är utförd med flammad, öländsk kalksten och taket av enkupigt lertegel. Både interiört och exteriört är huset lämnat obehandlat och kommer åldras naturligt av väder och vind.

Föregående
Föregående

YXLAN

Nästa
Nästa

HEMMESTA SKÄRGÅRDSSTAD